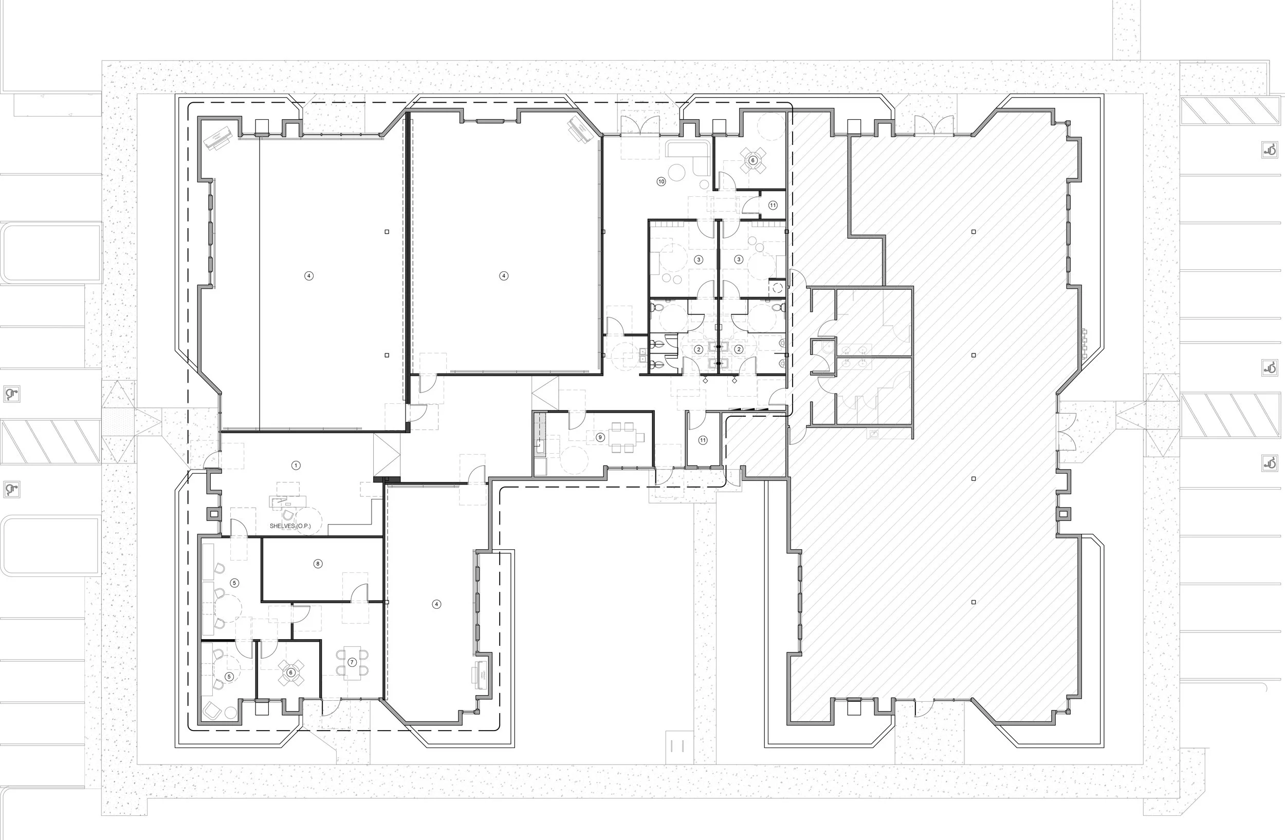
Diablo Ballet Center For Dance

Phase: Under Construction (2026)
Scope: Commercial Tenant Improvement
Design, Permitting, Interior Design
Contractor: RGC
AOR: Brockett Architects/Interiors
Photography: Archipelago

1. LOBBY
2. BATHROOM
3. CHANGING ROOM
4. DANCE STUDIO
5. OFFICE
6. MEETING ROOM
7. COSTUME PRODUCTION
8. STORAGE
9. LUNCH ROOM
10. DANCE COMPANY LOUNGE
11. UTILITY