A wood house in Sea Ranch

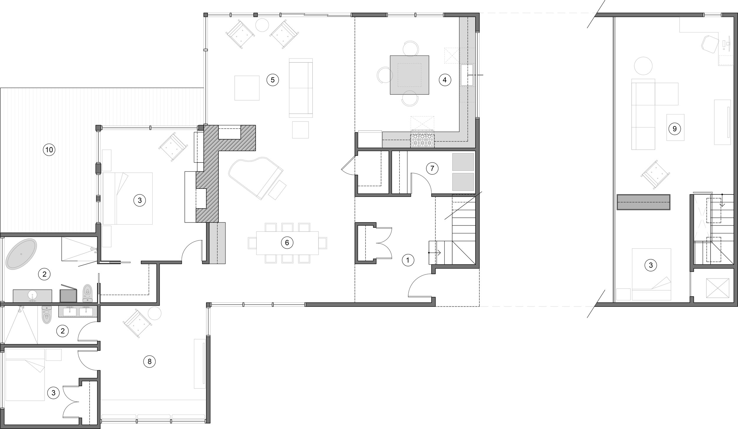
Sea Ranch Residence

Phase: Unbuilt
Scope: Vacation Residence
Approx. 2800 SF, 3 Bedroom, 2 Bath

1. ENTRY
2. BATHROOM
3. BEDROOM
4. KITCHEN
5. LIVING
6. DINING
7. PANTRY + LAUNDRY
8. DEN
9. LOFT/OFFICE
10. DECK